Ο Δήμος Θήρας έχει προκηρύξει δημόσιο ανοιχτό διαγωνισμό μέσω του Εθνικού Συστήματος Ηλεκτρονικών Δημοσίων Συμβάσεων (Ε.Σ.Η.ΔΗ.Σ), με κριτήριο ανάθεσης την πλέον συμφέρουσα από οικονομική άποψη προσφορά με βάση την τιμή, για την ανάδειξη αναδόχου εκτέλεσης του έργου “ΔΙΑΜΟΡΦΩΣΗ ΠΛΑΤΕΙΑΣ ΦΗΡΟΣΤΕΦΑΝΙΟΥ”, προϋπολογισμού 793.600,00€ (με ΦΠΑ).
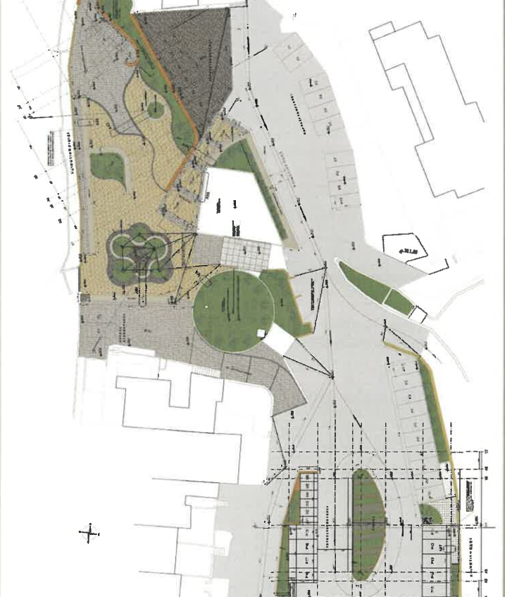
Όπως περιγράφεται στη σχετική προκήρυξη του διαγωνισμού, το έργο αφορά στις εργασίες που προβλέπονται να πραγματοποιηθούν για την ανάπλαση της πλατείας Φηροστεφανίου Θήρας, συνολικού εμβαδού 3.651,28τ.μ. Ο χώρος βρίσκεται στο κέντρο του οικισμού σε προνομιούχο σημείο λόγω της θέας του προς την καλντέρα, με αποτέλεσμα να προσελκύει το ενδιαφέρον των επισκεπτών. Ο χώρος διακρίνεται σε δύο επίπεδα με υψομετρική διαφορά περίπου 4 μέτρων. Ο φυσικός αυτός διαχωρισμός δημιουργεί δυο ανεξάρτητους χώρους με διαφορετική χρήση. Στο δυτικό τμήμα με τη θέα στην καλντέρα διαμορφώνεται χώρος συνάντησης με καθιστικά και χώρους φύτευσης, ενώ στο ανατολικό βρίσκουμε έναν οργανωμένο χώρο στάθμευσης. Οι εργασίες που προβλέπονται να πραγματοποιηθούν είναι κυρίως οικοδομικές (χωματουργικά, σκυροδετήσεις, τοιχοδομές) καθώς και εγκαταστάσεις ηλεκτροφωτισμού και άρδευσης, αλλά και εργασίες πρασίνου.
Η συνολική προθεσμία εκτέλεσης του έργου ορίζεται σε 180 ημερολογιακές ημέρες από την ημέρα υπογραφής της σύμβασης.
Η υποβολή των προσφορών από τους ενδιαφερόμενους θα γίνεται ηλεκτρονικά, μέσω της διαδικτυακής πύλης του ΕΣΗΔΗΣ, μέχρι την Τετάρτη 15/1/25, ώρα 14:00. Ως ημερομηνία και ώρα ηλεκτρονικής αποσφράγισης των προσφορών ορίζεται η Δευτέρα 20/1/25, ώρα 11:00 π.μ.
Τα έγγραφα της σύμβασης είναι διαθέσιμα στον χώρο “ηλεκτρονικοί διαγωνισμοί” της πύλης www.promitheus.gov.gr. Γενικές πληροφορίες δίνονται στο τηλ. 2286360160 και στο e-mail dty@thira.gov.gr.





